卸料平台的安装和使用要求
卸料平台的安装和使用要求
在施工过程中,为保证建筑结构施工材料的进出,常在建筑物外立面设置平台作为施工材料、器具、设备的周转平台,将无法用电梯、井架提运的大件材料、器具、设备用塔式起重机先吊运至卸料平台上,再转运至使用或安装地点。
目前常用的卸料平台分为采用钢管落地搭设的卸料平台和采用悬挑方式搭设的卸料平台。


一、材料规格
(1) 落地搭设的卸料平台:一般采用∅48X3.5钢管的扣件连接方式搭设,也可采用其他规格的钢管和碗扣式连接的方式搭设。平面板宜采用钢板或大于1.8cm厚的木质夹板。
(2) 悬挑搭设的卸料平台:一般采用钢平台,钢平台的材料全部为Q235,平台骨架一般由型钢和钢板焊接而成,平面板宜采用花纹钢板,拉索、保险钢丝绳的直径不小于20mm。
二、用途
卸料平台是作为施工材料、器具、设备垂直运输的周转平台.它可以灵活地适用于各类施工工地。
(1) 落地搭设的卸料平台常用于多层建筑物的施工中。
(2) 悬挑搭设的卸料平台一般用于高层建筑物的施工中。
三、落地式脚手架搭设的卸料平台
卸料平台的形式
(1)一般情况下,搭设高度不宜超过12m,高宽之比控制在2.5:1以内,面积一般不超过6mX6m=36m2。
(2)单位面积的荷载应控制在4kN/m2。集中荷载不大于10kN,原则上总荷载不能大于20kN。
2.构造要求
(1) 立杆的间距宜为600〜900mm.步高宜在1.5〜1.8m之间。
(2) 外侧四个立面由底至顶连续设置剪刀撑。
(3) 水平剪刀撑间距不大于4.0m.
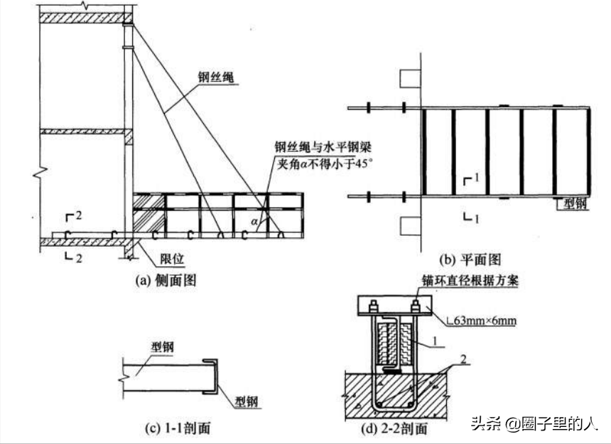
(4) 拉结点应直接和建筑物结构连接,每层设置。连接采用刚性连接。形式可选用埋件、钢管直接抱箍-钢管抱箍与结构柱之间需用防滑垫木顶紧,避免抱箍因受力不均产生滑动。拉结杆必须与平台立杆牢固扣接.且拉结点与平台主结点之间的距离不大于2000mm;拉结杆与柱抱箍用旋转扣件扣牢。拉结方式如图1所示。

图1:落地搭设卸料平台拉结点示意拉结杆
1一拉结杆:2一建筑物(墙体):3—脚手架;4—木格栅;5—过桥板:6—卸料平台
3.悬挑式钢平台
按其悬挑方式可分为悬挂式和斜撑式两种.目前主要以悬挑式为主。
卸料平台的形式
(1) 一般可根据不同需要设置,常见的长宽尺寸有4.5mX2.4m、4.8mX2.4m、5.0mX1.6m;悬挂式钢平台结构见图2。

图2:悬挂式卸料平台示意图
1-木楔侧向揳紧;2-两根15m长直径18mm的HRB400钢筋
(2) 平台上堆载的荷载重量不得大于1.2t。
4.构造要求
应满足《建筑施工扣件式钢管脚手架安全技术规范》(JGJ130).《建筑施工安全检査
标准》(JGJ59)、《建筑施工高处作业安全技术规范》(JGJ80)的相关规定。
(1) 平台要求
应设置4个经过验算的吊环,吊运平台时应使用卡环,不得使吊钩直接钩挂吊环。吊环应用甲类3号沸腾钢制作。吊耳详图见图3.

图3:悬挂式钢平:台吊耳详图
(2) 拉索钢丝绳要求
斜拉杆或钢丝绳,构造上宜两边各设前后两道,两道中的每一道均应作单道受力计算。
(3) 围护栏杆要求
平台三面均应设置防护栏杆,当需要吊运长度超过卸料平台的材料时,其端部护栏可做成格栅门。人员上卸料平台时,必须采取可靠的安全防护措施。
5.材料要求
制作卸料平台的钢材应采用国家标准材料,制作严格,按图施工,尺寸正确.点焊接点牢固,达到安全防护之目的。
四、卸料平台的施工
(1)采用扣件式钢管脚手架,平台搭设、拆除及使用过程中的技术要求必须符合《建筑施工扣件式钢管脚手架安全技术规范》(JGJ130)中的相关规定要求。
(2) 卸料平台应设置在有大开孔的部位,台面与楼板取平或搁置在楼板上。
(3) 悬挑搭设的卸料平台在建筑物的垂直方向应错开设置不得设在同一平面位置上,以避免上层的卸料平台阻碍其下层卸料平台吊运物品材料。
(4) 卸料平台搭设完成,必须经过安全验收,挂牌后才能正式使用。
五、钢管落地搭设的卸料平台
1.搭设
(1) 地基:处理应牢固可靠,要满足计算承载力的要求,并设置垫木或型钢。应铺设平稳,不能有悬空。
(2) 搭设顺序:严格按照方案要求进行搭设。
(3) 材质要求:严禁将不同外径的钢管混合使用。
(4) 立杆搭设要求:相邻立杆的对接扣件不得在同一高度内,错开距离应符合《建筑施匸.扣件式钢管脚手架安全技术规范》(JGJ130)的相关规定;当搭至有连墙件的构造点时.在搭设完该处的立杆、纵向水平杆、横向水平杆后,应立即设置连墙件。
(5) 横杆搭设要求:应符合《建筑施工扣件式钢管脚手架安全技术规范》(JGJ130)中的相关规定。架横向水平杆的靠墙一端至墙装饰面的距离不宜大于2000mm.
(6) 纵向、横向扫地杆搭设应符合《建筑施工扣件式钢管脚手架安全技术规范》(JGJ130)规范的相关构造规定。
(7)连墙件、剪刀撑、横向斜撑等的搭设应符合下列规定:
1) 连墙件搭设应符合《建筑施工扣件式钢管脚手架安全技术规范》JGJ130规范6.4节的构造规定。施工操作层不应超出楼层的顶部。
2) 剪刀撑、横向斜撑搭设应符合《建筑施工扣件式钢管脚手架安全技术规范》(JGJ130)规范第6.6节的规定,并应随立杆、纵向和横向水平杆等同步搭设,各底层斜杆下端均必须支承在垫块或垫板上。
(8) 扣件安装应符合下列规定:
1) 扣件规格必须与钢管外径(∅48或∅51)相同。
2) 螺栓拧紧扭力矩不应小于40N•m.且不应大于65N•m。
3) 在主节点处固定横向水平杆、纵向水平杆、剪刀撑、横向斜搓等用的直角扣件、旋转扣件的中心点的相互距离不应大于150mm。
4) 对接扣件开口应朝上或朝内。
5) 各杆件端头伸出扣件盖板边缘的长度不应小于100mm。
(9) 搭设时要及时与建筑物结构拉结,或采用临时支顶.以确保搭设过程中的安全,并随搭随校正杆件的垂直度和水平偏差,同时适度拧紧扣件.螺栓的根部要放正,当用力矩扳手检査,应在40-50N•m之间,最大不能超过80N•m,连接杆件的对接扣件,开口应朝架子内侧螺栓要向上,以防雨水进入。
(10) 拉结杆安装时必须避开脚手架各杆件(无联结).防止脚手架受到附加外力影响脚手架体系的安全。
2.验收、维护和管理
(1)卸料平台搭设完成必须按照《建筑施工安全检査标准》(JGJ59)以及《建筑施工高处作业安全技术规范》(JGJ80)的有关内容进行检查,验收合格后方可使用。
(2) 卸料平台应设专人管理,定期维护:对卸料平台的杆件、扣件等定期检测,发现松动及时加固。
(3) 卸料平台必须挂设限载牌,严格按照其要求限载堆放。
3.拆除
(1) 架子拆除时应划分作业区,周围设围栏或竖立警戒标志。
(2) 拆除顺序应遵循由上而下、先搭后拆、后搭先拆的原则。即先拆脚手板、斜拉杆,后拆横杆、纵杆、立杆等,并按一步一清的原则依次进行,要严禁上下同时进行拆除作业。
(3) 拆立杆时,应先抱住立杆再拆开最后两个扣。
(4) 连墙件应随拆除进度逐层拆除。
(5) 拆除时如附近有外电线路,要采取隔离措施,严禁架杆接触电线。
(6) 拆下的材料,应用绳索拴住,利用滑轮徐徐下运,严禁抛掷,运至地面的材料应按指定地点,随拆随运,分类堆放,当天拆当天清,拆下的扣件或钢丝要集中回收处理。六、悬挑搭设的卸料平台
搭设
(1)悬挑式钢平台的搁置点与上部拉结点,必须位于建筑物上,不得设置在脚手架等施工设备上。
(2) 钢平台加工制作完成,必须经过验收合格,方可安装使用。
(3) 平台安装时,钢丝绳应采用四角四根拉设,每根的承载力不小于设计计算值;卸夹和夹具应采用定型的专业产品。建筑物锐角利口围系钢丝绳处应加衬软垫物,钢平台外口应略高于内口。
(4) 搭设完成必须按照《建筑施工高处作业安全技术规范》(JGJ80)的有关内容进行检査,验收合格后方可使用。
2.验收、周转使用、维护
(1) 平台吊装翻转时,需待横梁支撑点电焊固定,接好钢丝绳,调整完毕,经过检査验收,方可松卸起重吊钩,进行上翻操作。
(2) 每次安装完毕必须经过安全验收合格方可使用。使用过程中必须挂设限载牌,严格按照其要求限载堆放。
(3) 卸料平台应设专人管理,定期维护,发现问题及时整改加固。
3.拆除
(1) 钢平台的拆除过程与安装过程相反。
(2) 钢平台拆除前必须将钢平台上物料清除干净,同时拆除时在吊车未吊住钢平台前不允许松卸钢丝绳。吊车将钢平台吊紧后方可松卸钢丝绳并拆除钢平台与预埋钢管的连接。
(3) 拆除钢平台时,地面应设围栏和警成标志,并派专人看守,严禁非操作人员入内。
七、卸料平台的安全施工要求
(1)卸料平台搭设和制作的各种材料,必须符合规范要求,不合格的材料严禁使用。
(2) 钢管式卸料平台在搭设之前,确定搭设位置已清理.尽量避开外防护架的剪刀撑,以防通道与剪刀撑冲突。
(3) 工人在搭设钢管式卸料平台时,应严格按照技术交底和安全操作规程进行作业,夜间施工必须有足够照明。
(4) 搭设完毕后,必须由生产部门组织,技术、质量、安全等部门相关人员参加,按要求对平台进行验收,合格后方可投入使用,并填写必要的资料。
(5) 钢管式卸料平台在向上搭接时,必须由专人监督.按技术交底和安全操作规程要求进行拆改,搭设到需要的高度时,同样必须经过验收合格后,方可投入使用。
(6) 悬挑式卸料平台制作过程中,严格按照技术交底和操作规程进行作业,焊缝的长度、高度和强度必须满足规范要求。制作完毕后,必须由生产部门组织技术、质址、安全等部门相关人员参加,对平台进行验收,合格后方可投入使用。
(7) 悬挑式卸料平台在首次吊装时,生产、技术、质最、安全等相关人员必须到场,对吊装和安装过程进行监控,信号工、塔式起重机司机和安装工人紧密配合,严格按照操作规程作业。在吊装就位、钢丝绳拉紧后,要对平台和各种相关防护进行验收,并做荷载试压试验,合格后方可投入使用,并填写必要的资料。平台在倒运过程中,必须由专人进行监督。按照安全操作规程进行作业,安装就位后•必须再次经过验收合格后,方可投入使用。
(8) 吊装时,利用平台四角的吊环将平台吊至安装位置,平行移动使主龙骨工字钢穿过外防护架(注意不要磕碰外防护架)就位,使定位角钢卡在结构边梁上(角钢下垫软物),然后拉结受力钢丝绳和保险绳,两道受力钢丝绳受力平衡后,慢慢放下平台,确认钢丝绳受力后,松去塔式起重机吊绳。钢绳要有防剪切保护,钢绳穿墙螺杆必须双垫双帽・平台倒运时,先用塔式起重机将平台四角吊起,使平台拉结钢丝绳松弛、拆卸,然后慢慢平行向外移动,待平台工字钢完全伸出外防护架后,再向上吊装。向上吊装时,平台严禁上人。
(9) 施工负责人要组织相关人员定期对搭设的卸料平台进行定期和不定期的检査,掌握乎台的使用、维护情况,尤其是在大风大雨过后,要对卸料平台进行检査,对不合格的部位进行修复或更换,合格后方可继续使用。
(10) 平台上悬挂限重标志牌,标明吨位和卸料数量。严禁超载或长期堆放材料,随堆随吊;堆放材料高度不得超过平台护栏高度;工人限数1〜2人,严禁将平台作为休息平台。
-
- 地球最稀有的金属氢被造出,它有哪些不可思议的能量?
-
2023-11-27 15:46:49
-
- 洛阳博物馆五大镇馆之宝
-
2023-11-27 15:44:34
-
- 俄罗斯游记(一)
-
2023-11-27 07:50:20
-
- 2010年,成都女孩养狼做“儿子”,10后的结局催人泪下
-
2023-11-27 07:48:05
-
- 英语必考的语法点:状语从句八大类型的区分以及知识点讲解
-
2023-11-27 07:45:50
-
- 详解视频拖影现象和解决办法
-
2023-11-27 07:43:36
-
- 武汉自驾游,10个不容错过的好去处,你去过几个?
-
2023-11-27 07:41:21
-
- 传闻中的深圳大学灵异事件
-
2023-11-27 07:39:06
-
- 安雯:因出演晴雯而出名,安雯命运的后半段,痴情一生,恨极一生
-
2023-11-27 07:36:51
-
- 霍金第二任妻子:以第三者身份嫁给霍金,11年后离婚,得到几百万
-
2023-11-27 07:34:36
-
- 2010年千余子孙共祭刘文彩,欲为其正名,网友:谁也不能颠倒黑白
-
2023-11-27 07:32:21
-
- 丽江宋城千古情景区游玩攻略,穿越时空的茶马古道
-
2023-11-27 07:30:06
-
- 水浒传梁山好汉108将的结局归宿最全整理,值得收藏
-
2023-11-27 04:17:13
-
- 东宫番外:中原的李承鄞和小枫,下一代有了不一样的结局
-
2023-11-27 04:14:58
-
- 拿破仑军事生涯巅峰之战-奥斯特里茨战役(一)
-
2023-11-26 22:59:45
-
- 警方破获“国脉天网”特大传销案,涉案资金高达1.3亿元!
-
2023-11-26 22:57:30
-
- 广西野生淡水鱼类介绍,广西境内“洞穴鱼”居全国之首
-
2023-11-26 22:55:15
-
- 赵雅芝郑少秋、何家劲张卫健,港剧一哥一姐竟全靠拍内地剧爆红?
-
2023-11-26 22:53:00
-
- 二咖娱记 - 含笑半步的小颠儿
-
2023-11-26 22:50:45
-
- 死后最牛谥号“文正”,《清平乐》中的他,因司马光一句话被摘帽
-
2023-11-26 22:48:30



3-5分钟人性短片(山下的女人是老虎)
杨钰莹现在老公(杨钰莹现在老公的婚照)